Back to Listings
MLS# 1566657 2601 Duncan Chapel Road Greenville, SC 29617
$ 160,000 - 2 Bed, 2 Bath, 0 Half - 1000-1199 Square Feet - 0.00 Acres































2601 Duncan Chapel Road
Price$ 160,000
StatusActive
Bedrooms2
Full Baths2
Half Baths0
Sq Ft1000-1199
MLS#1566657
Area061-Berea Area
SubdivisionCourt Ridge
CountyGreenville
Acres0.00
Approx Age31-50
# of Stories1
DescriptionWelcome to 2601 Duncan Chapel Road, Unit G301! This delightful 2-bedroom, 2-bath condo offers the perfect blend of comfort and convenience. Ideally located just behind Furman University and minutes from the Swamp Rabbit Trail, downtown Travelers Rest, and nearby shopping, it places you right in the heart of it all. Inside, you’ll find an open-concept living room designed for easy living—whether you’re entertaining guests or simply enjoying a quiet evening at home. The thoughtful layout and ample storage make the space both functional and inviting. Adding even more value, the HOA takes care of the details so you don’t have to, covering lawn and landscape maintenance, exterior upkeep, pool care, water, trash service, and pest control—providing a low-maintenance, worry-free lifestyle. Whether you’re searching for a comfortable place to call home or a great investment opportunity, this property is a must-see. Schedule your showing today!
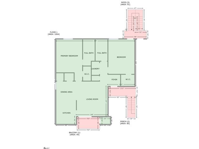
Room Dimensions
Living Room Size is 16x14
Master Bed Room Size is 19x12
Dining Room Size is 9x9
Bedroom Room 2 Size is 15x12
Kitchen Size is 10x9
Features
Style : Traditional,Condo Upper Level
Basement : None
Roof : Architectural
Interior Features : Ceiling Fan,Ceiling Cathedral/Vaulted,Open Floor Plan,Walk In Closet,Countertops – Laminate
Master Bedroom Features :
Specialty Room : None
Appliances : Dishwasher,Disposal,Dryer,Refrigerator,Washer,Cook Top-Electric
Fireplace : None
Lot Description : Sidewalk,Some Trees,Underground Utilities
Heating : Electric
Cooling : Central Forced
Floors : Laminate Flooring
Water : Public
Sewer : Public
Water Heater : Electric
Foundation : Slab
Storage : Other/See Remarks
Garage : Driveway Parking
Driveway : Paved Asphalt,Shared or Common
Exterior Finish : Vinyl Siding
Elementary School : Duncan Chapel
Middle School : Berea
High School : Travelers Rest
Listing courtesy of Jana, Eldris - Realty One Group Freedom  -  864-914-1691
The data on this website relating to real estate for sale comes from the IDX Program of the Greater Greenville Association of Realtors.
All information is believed accurate but not guaranteed. The properties displayed may not be all of the properties available through the IDX Program. Any use of this site other than by potential buyers or sellers is strictly prohibited.
All information is believed accurate but not guaranteed. The properties displayed may not be all of the properties available through the IDX Program. Any use of this site other than by potential buyers or sellers is strictly prohibited.