Back to Listings
MLS# 1573051 239 Telluride Way Lyman, SC 29365
$ 279,990 - 3 Bed, 3 Bath, 0 Half - 2000-2199 Square Feet - 0.04 Acres
239 Telluride Way
Price$ 279,990
StatusActive
Bedrooms3
Full Baths3
Half Baths0
Sq Ft2000-2199
MLS#1573051
Area015-Landrum/Inman/Wellfrd
SubdivisionAspen Ridge
CountySpartanburg
Acres0.04
Approx AgeNew/Never Lived In
# of Stories2
DescriptionWelcome to Aspen Ridge! We are the only luxury townhomes minutes from Downtown Greer. SIMPLIFY YOUR MOVE! All homes feature the move-in package boasting a refrigerator, washer, dryer, dishwasher, microwave, in-sink disposal and white faux wood blinds. Offering 2,185 square feet of functional living space, the Summit is a thoughtfully crafted home that is sure to meet all your needs. Enter the spacious foyer from your front porch or garage and come into your open concept living area where you can entertain seamlessly between the living room, kitchen and breakfast area. The chef's kitchen is a must see with stunning white cabinetry, white Quartz countertops, tiled backsplash, center island with sink, under cabinet lighting and stainless steel gas appliances including a refrigerator! The 12’ Cathedral Ceilings makes the living room open and airy and lead out to the covered porch and more private backyard which is perfect for those summer evenings. Retreat to the luxurious main floor Primary Suite, complete with a generous walk in closet and spa like bathroom featuring double vanities and a beautiful tiled shower with built in seat. There is a dining room off of the foyer which could also make a great home office, a full bath as well as your laundry room with washer/dryer included which completes the main level. Up the Oak staircase are two large bedrooms, a full bath, and a versatile room that would be a great entertaining space or even another bedroom. Blinds are also included throughout the home. The 1 car garage and double parking pad give a convenient and versatile combination for car storage and parking. Smart home technology, energy-efficient design, and a dedicated local warranty team ensure long-term comfort and convenience. HOA includes lawn care and trash collection. New luxury townhomes in Spartanburg, SC minutes from Greer, SC in the town of Lyman! Live effortlessly in your new home with easy access to Greenville, SC, I-85, nearby schools, shops, parks and restaurants. Desirable open-concept floorplans with craftsman style exteriors. Main level or second level primary suites available with many premier features floorplans including, 2-story ceiling, 9-foot kitchen island, spacious primary suites, LVP flooring, and plentiful large windows allowing an abundance of natural light. Come by today for your personal tour and be one of the first ones to call Aspen Ridge your new home! See Sales Agent for addtional pricing information.
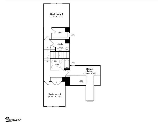
Room Dimensions
Living Room Size is 15x15
Master Bed Room Size is 13x14
Dining Room Size is 10x14
Bedroom Room 2 Size is 11x12
Bedroom Room 3 Size is 13x12
Bonus Room Size is 13x14
Kitchen Size is 15x13
Features
Style : Craftsman
Basement : None
Roof : Architectural
Interior Features : Attic Stairs Disappearing,Cable Available,Ceiling 9ft+,Ceiling Fan,Ceiling Cathedral/Vaulted,Ceiling Smooth,Open Floor Plan,Smoke Detector,Walk In Closet,Split Floor Plan,Countertops – Quartz,Pantry – Closet,Smart Systems Pre-Wiring
Master Bedroom Features :
Specialty Room : Bonus Room/Rec Room
Appliances : Dishwasher,Disposal,Dryer,Stand Alone Range-Gas,Oven-Self Cleaning,Refrigerator,Washer,Oven-Gas,Microwave-Built In,Microwave-Convection
Fireplace : None
Lot Description : Level
Heating : Natural Gas
Cooling : Electric
Floors : Carpet,Luxury Vinyl Tile/Plank
Water : Public
Sewer : Public
Water Heater : Electric
Foundation : Slab
Storage : Garage
Garage : Attached Garage 1 Car,Door Opener
Driveway : Extra Pad,Paved
Exterior Finish : Vinyl Siding
Elementary School : Lyman
Middle School : DR Hill
High School : James F. Byrnes
Listing courtesy of Cathcart, Chelsea - DRB Group South Carolina, LLC  -  864-729-4168
The data on this website relating to real estate for sale comes from the IDX Program of the Greater Greenville Association of Realtors.
All information is believed accurate but not guaranteed. The properties displayed may not be all of the properties available through the IDX Program. Any use of this site other than by potential buyers or sellers is strictly prohibited.
All information is believed accurate but not guaranteed. The properties displayed may not be all of the properties available through the IDX Program. Any use of this site other than by potential buyers or sellers is strictly prohibited.


Licensed REALTORS in South Carolina.